Log Homes
Ashley Homes Construction Co.
Our Log Home Floor Plan Gallery
Check out the log home floor plan options in Ashley Homes Construction Co's project gallery (see below). Our third-generation local contracting business is your one-stop shop for the complete construction process. Our dedicated, experienced, and tenured team is ready to get started on your log home. Contact us today to get started.
The Berkshire
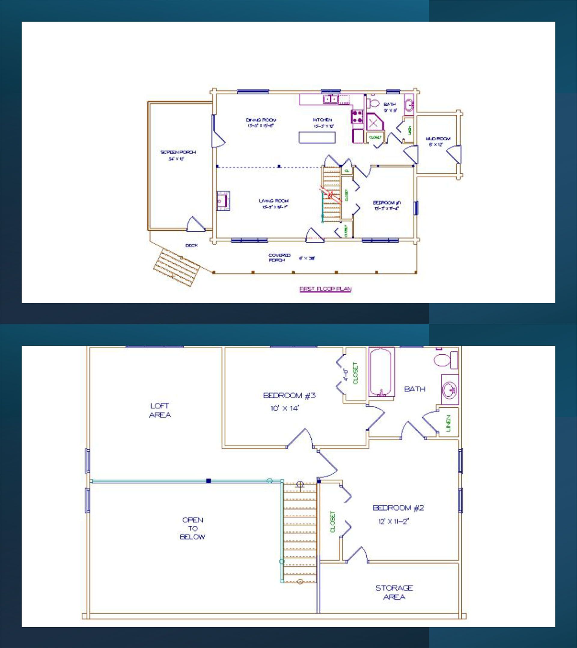
5 bedrooms
3 bathrooms
3,502 square feet
The Maplecrest
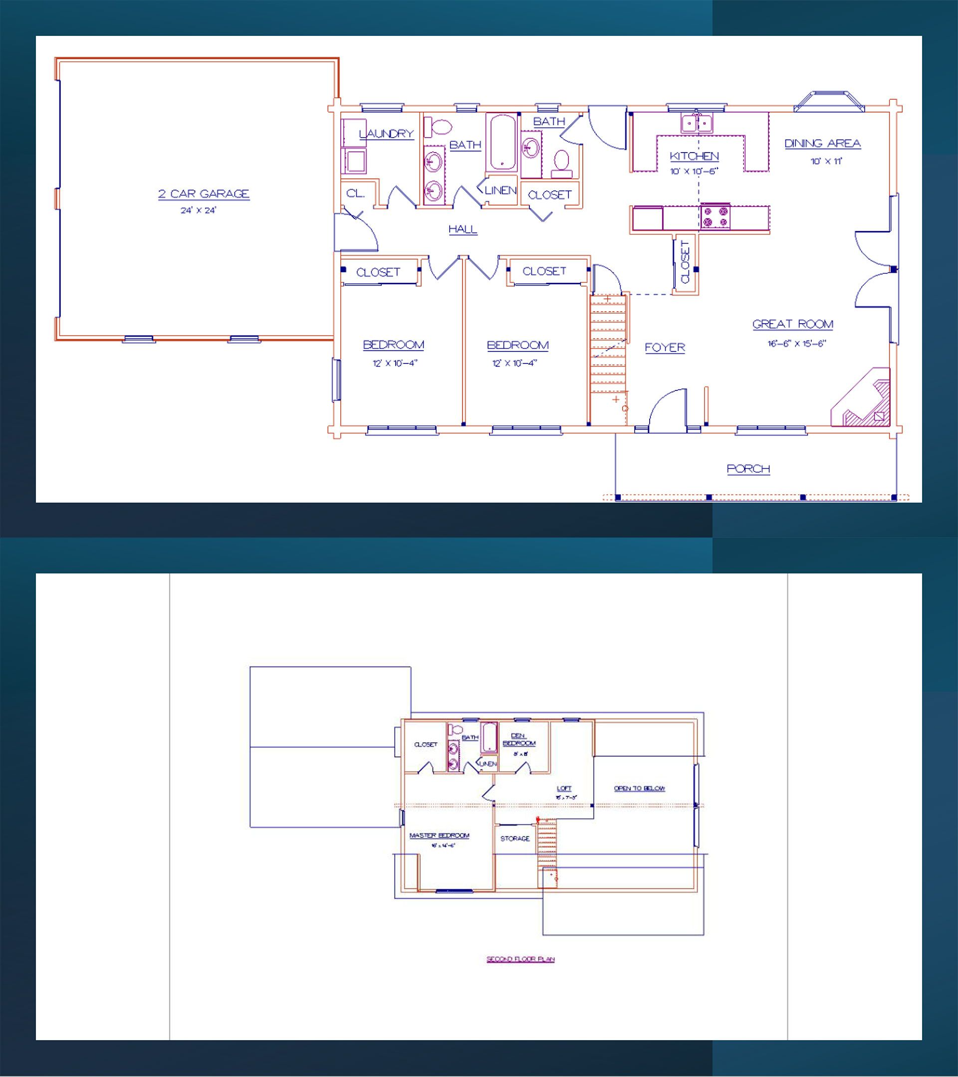
3 bedrooms
2 bathrooms
2080 square feet
The Kingston
3 bedrooms
2.5 bathrooms
2,592 square feet
The Castle Peak
3 bedrooms
3.5 bathrooms
3,504 square feet
The Altamont
2 bedrooms
2 bathrooms
2,649 square feet
The Saratoga
3 bedrooms
2 bathrooms
2,477 square feet
The Windham
3 bedrooms
3 bathrooms
2,689 square feet
Sagamore
Collection Name: Charler
Bedrooms: 3
Square Feet: 1,138 sq. ft. 1st. - 549 sq. ft. loft
Bathrooms: 2.5
Alta Classic II
Collection Name: Estate
Bedrooms: 3
Square Feet: 2,556 sq. ft.
Bathrooms: 2.5
Alta Classic
Collection Name: Estate
Bedrooms: 3
Square Feet: 1,688 sq. ft. - 580 sq. ft. loft
Bathrooms: 2
Alta Frontier
Collection Name: Estate
Bedrooms: 3
Square Feet: 1,448 sq. ft. - 640 sq. ft. loft
Bathrooms: 3
Greenbriar "C" Log Home
Collection Name: Estate
Bedrooms: 3
Square Feet: 2,050 sq. ft. 1st. - 376 sq. ft. loft
Bathrooms: 2
Greenbriar
Collection Name: Estate
Bedrooms: 3
Square Feet: 1,944 sq. ft. - 378 sq. ft. loft
Bathrooms: 2
Woodstock
Collection Name: Estate
Bedrooms: 3
Square Feet: 1,800 sq. ft.
Bathrooms: 2
Cape Chalet
Collection Name: Cape
Bedrooms: 3
Square Feet: 912 sq. ft. 1st. - 376 sq. ft. loft
1,064 sq. ft. 1st. - 460 sq. ft. loft
Bathrooms: 1
Catskill
Collection Name: Cape
Bedrooms: 4
Square Feet: Total sq. ft. 1,808
Bathrooms: 2
Highland
Collection Name: Cape
Bedrooms: 3
Square Feet: 952 sq. ft. 1st. - 952 sq. ft. 2nd.
Bathrooms: 1 - 1.5
Lakeview
Collection Name: Cape
Bedrooms: 3
Square Feet: 912 sq. ft. 1st. - 376 sq. ft. loft
1,064 sq. ft. 1st. - 460 sq. ft. loft
Bathrooms: 1 or 2
Meredith
Collection Name: Cape
Bedrooms: 3
Square Feet: 1,160 sq. ft. 1st. - 728 sq. ft. loft
Bathrooms: 2
Putnam
Collection Name: Cape
Bedrooms: 3
Square Feet: 912 sq. ft. 1st. - 656 sq. ft. loft
1,064 sq. ft. 1st. - 713 sq.ft. loft
Bathrooms: 2
Warwick
Collection Name: Cape
Bedrooms: 4
Square Feet: 2,101 sq. ft.
Bathrooms: 2
Floor Plans
The Maplecrest

The Kingston

The Castle Peak

The Saratoga

Cape Chalet

Highland

Lakeview

Meredith

Warwick























